Home Plan Pro RSS

Home Plan Pro 5.3.1.2

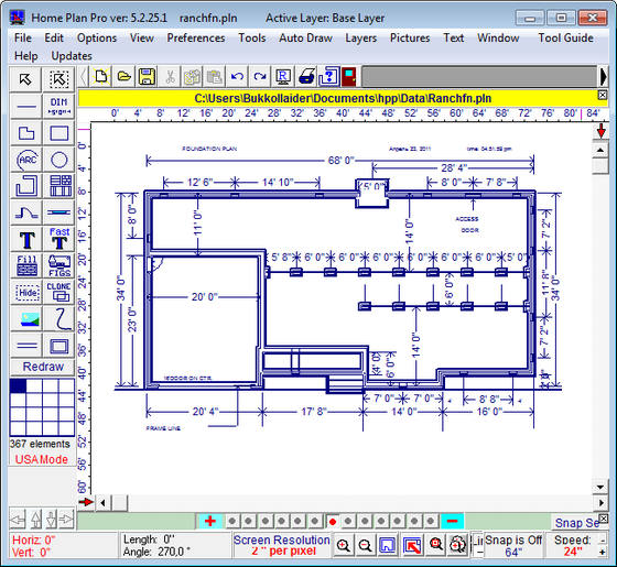
Home Plan Pro - отличная программа для быстрого и легкого черчения плана помещений, мест и архитектурного дизайна. Программа предлагает множество различных инструментов, которые помогут вам начертить план вашего дома, квартиры, жилых помещений и т.д. Пользователю предлагаются такие инструменты, как линии, овалы, прямоугольники, черчение стен, дверей, окон, арок, кирпичных стен, вставка изображений, текста, дублирование предыдущего элемента и многое другое.

Bukkollaider 28/03/16 Просмотров: 6295 Комментариев: 0
+4
Home Plan Pro 5.2.26.4

Home Plan Pro - отличная программа для быстрого и легкого черчения плана помещений, мест и архитектурного дизайна. Программа предлагает множество различных инструментов, которые помогут вам начертить план вашего дома, квартиры, жилых помещений и т.д. Пользователю предлагаются такие инструменты, как линии, овалы, прямоугольники, черчение стен, дверей, окон, арок, кирпичных стен, вставка изображений, текста, дублирование предыдущего элемента и многое другое.

Bukkollaider 10/04/13 Просмотров: 6208 Комментариев: 0
0
Home Plan Pro 5.2.26.2

Home Plan Pro - отличная программа для быстрого и легкого черчения плана помещений, мест и архитектурного дизайна. Программа предлагает множество различных инструментов, которые помогут вам начертить план вашего дома, квартиры, жилых помещений и т.д. Пользователю предлагаются такие инструменты, как линии, овалы, прямоугольники, черчение стен, дверей, окон, арок, кирпичных стен, вставка изображений, текста, дублирование предыдущего элемента и многое другое.

Bukkollaider 16/03/13 Просмотров: 5503 Комментариев: 1
0
Home Plan Pro 5.2.26.1

Home Plan Pro - отличная программа для быстрого и легкого черчения плана помещений, мест и архитектурного дизайна. Программа предлагает множество различных инструментов, которые помогут вам начертить план вашего дома, квартиры, жилых помещений и т.д. Пользователю предлагаются такие инструменты, как линии, овалы, прямоугольники, черчение стен, дверей, окон, арок, кирпичных стен, вставка изображений, текста, дублирование предыдущего элемента и многое другое.

ITSS 22/10/12 Просмотров: 5415 Комментариев: 0
0
Home Plan

Home Plan Pro - отличная программа для быстрого и легкого черчения плана помещений, мест и архитектурного дизайна. Программа предлагает множество различных инструментов, которые помогут вам начертить план вашего дома, квартиры, жилых помещений и т.д. Пользователю предлагаются такие инструменты, как линии, овалы, прямоугольники, черчение стен, дверей, окон, арок, кирпичных стен, вставка изображений, текста, дублирование предыдущего элемента и многое другое.

aks85 14/10/12 Просмотров: 5154 Комментариев: 0
0
Home Plan Pro

Home Plan Pro - отличная программа для быстрого и легкого черчения плана помещений, мест и архитектурного дизайна. Программа предлагает множество различных инструментов, которые помогут вам начертить план вашего дома, квартиры, жилых помещений и т.д. Пользователю предлагаются такие инструменты, как линии, овалы, прямоугольники, черчение стен, дверей, окон, арок, кирпичных стен, вставка изображений, текста, дублирование предыдущего элемента и многое другое.

SlaYSteR 16/08/12 Просмотров: 5564 Комментариев: 1
0
Home Plan Pro 5.2.25.18

Home Plan Pro - отличная программа для быстрого и легкого черчения плана помещений, мест и архитектурного дизайна. Программа предлагает множество различных инструментов, которые помогут вам начертить план вашего дома, квартиры, жилых помещений и т.д. Пользователю предлагаются такие инструменты, как линии, овалы, прямоугольники, черчение стен, дверей, окон, арок, кирпичных стен, вставка изображений, текста, дублирование предыдущего элемента и многое другое.

Bukkollaider 05/08/12 Просмотров: 5442 Комментариев: 1
0
Home Plan Pro 5

Home Plan Pro - отличная программа для быстрого и легкого черчения плана помещений, мест и архитектурного дизайна. Программа предлагает множество различных инструментов, которые помогут вам начертить план вашего дома, квартиры, жилых помещений и т.д. Пользователю предлагаются такие инструменты, как линии, овалы, прямоугольники, черчение стен, дверей, окон, арок, кирпичных стен, вставка изображений, текста, дублирование предыдущего элемента и многое другое.

Bukkollaider 31/03/12 Просмотров: 6300 Комментариев: 0
0
Home Plan Pro 5

Home Plan Pro - отличная программа для быстрого и легкого черчения плана помещений, мест и архитектурного дизайна. Программа предлагает множество различных инструментов, которые помогут вам начертить план вашего дома, квартиры, жилых помещений и т.д. Пользователю предлагаются такие инструменты, как линии, овалы, прямоугольники, черчение стен, дверей, окон, арок, кирпичных стен, вставка изображений, текста, дублирование предыдущего элемента и многое другое.

Bukkollaider 24/03/12 Просмотров: 5890 Комментариев: 4
0
Home Plan Pro 5.2.25.12

Home Plan Pro - отличная программа для быстрого и легкого черчения плана помещений, мест и архитектурного дизайна. Программа предлагает множество различных инструментов, которые помогут вам начертить план вашего дома, квартиры, жилых помещений и т.д. Пользователю предлагаются такие инструменты, как линии, овалы, прямоугольники, черчение стен, дверей, окон, арок, кирпичных стен, вставка изображений, текста, дублирование предыдущего элемента и многое другое.

ITSS 12/03/12 Просмотров: 5195 Комментариев: 0
0
Home Plan Pro 5

Home Plan Pro - отличная программа для быстрого и легкого черчения плана помещений, мест и архитектурного дизайна. Программа предлагает множество различных инструментов, которые помогут вам начертить план вашего дома, квартиры, жилых помещений и т.д. Пользователю предлагаются такие инструменты, как линии, овалы, прямоугольники, черчение стен, дверей, окон, арок, кирпичных стен, вставка изображений, текста, дублирование предыдущего элемента и многое другое.

Bukkollaider 21/02/12 Просмотров: 5425 Комментариев: 4
0
Home Plan Pro 5.2.25.8

Home Plan Pro - отличная программа для быстрого и легкого черчения плана помещений, мест и архитектурного дизайна. Программа предлагает множество различных инструментов, которые помогут вам начертить план вашего дома, квартиры, жилых помещений и т.д. Пользователю предлагаются такие инструменты, как линии, овалы, прямоугольники, черчение стен, дверей, окон, арок, кирпичных стен, вставка изображений, текста, дублирование предыдущего элемента и многое другое.

Bukkollaider 16/11/11 Просмотров: 5381 Комментариев: 0
0
Home Plan Pro 5.2.25.7

Home Plan Pro - отличная программа для быстрого и легкого черчения плана помещений, мест и архитектурного дизайна. Программа предлагает множество различных инструментов, которые помогут вам начертить план вашего дома, квартиры, жилых помещений и т.д. Пользователю предлагаются такие инструменты, как линии, овалы, прямоугольники, черчение стен, дверей, окон, арок, кирпичных стен, вставка изображений, текста, дублирование предыдущего элемента и многое другое.

Bukkollaider 28/10/11 Просмотров: 5674 Комментариев: 0
0

Home Plan Pro - отличная программа для быстрого и легкого черчения плана помещений, мест и архитектурного дизайна. Программа предлагает множество различных инструментов, которые помогут вам начертить план вашего дома, квартиры, жилых помещений и т.д. Пользователю предлагаются такие инструменты, как линии, овалы, прямоугольники, черчение стен, дверей, окон, арок, кирпичных стен, вставка изображений, текста, дублирование предыдущего элемента и многое другое.

Bukkollaider 10/08/11 Просмотров: 5333 Комментариев: 0
0

Home Plan Pro - отличная программа для быстрого и легкого черчения плана помещений, мест и архитектурного дизайна. Программа предлагает множество различных инструментов, которые помогут вам начертить план вашего дома, квартиры, жилых помещений и т.д. Пользователю предлагаются такие инструменты, как линии, овалы, прямоугольники, черчение стен, дверей, окон, арок, кирпичных стен, вставка изображений, текста, дублирование предыдущего элемента и многое другое.

Bukkollaider 09/07/11 Просмотров: 5478 Комментариев: 0
0

Home Plan Pro - отличная программа для быстрого и легкого черчения плана помещений, мест и архитектурного дизайна. Программа предлагает множество различных инструментов, которые помогут вам начертить план вашего дома, квартиры, жилых помещений и т.д. Пользователю предлагаются такие инструменты, как линии, овалы, прямоугольники, черчение стен, дверей, окон, арок, кирпичных стен, вставка изображений, текста, дублирование предыдущего элемента и многое другое.

Sanchez01 29/06/11 Просмотров: 5024 Комментариев: 1
0

Home Plan Pro - отличная программа для быстрого и легкого черчения плана помещений, мест и архитектурного дизайна. Программа предлагает множество различных инструментов, которые помогут вам начертить план вашего дома, квартиры, жилых помещений и т.д. Пользователю предлагаются такие инструменты, как линии, овалы, прямоугольники, черчение стен, дверей, окон, арок, кирпичных стен, вставка изображений, текста, дублирование предыдущего элемента и многое другое.

Sanchez01 18/05/11 Просмотров: 4682 Комментариев: 0
0

Home Plan Pro - отличная программа для быстрого и легкого черчения плана помещений, мест и архитектурного дизайна. Программа предлагает множество различных инструментов, которые помогут вам начертить план вашего дома, квартиры, жилых помещений и т.д. Пользователю предлагаются такие инструменты, как линии, овалы, прямоугольники, черчение стен, дверей, окон, арок, кирпичных стен, вставка изображений, текста, дублирование предыдущего элемента и многое другое.

Bukkollaider 23/04/11 Просмотров: 5933 Комментариев: 0
0

Home Plan Pro - отличная программа для быстрого и легкого черчения плана помещений, мест и архитектурного дизайна. Программа предлагает множество различных инструментов, которые помогут вам начертить план вашего дома, квартиры, жилых помещений и т.д. Пользователю предлагаются такие инструменты, как линии, овалы, прямоугольники, черчение стен, дверей, окон, арок, кирпичных стен, вставка изображений, текста, дублирование предыдущего элемента и многое другое.

Bukkollaider 07/03/11 Просмотров: 5013 Комментариев: 2
0
CWER.RU

Home Plan Pro - отличная программа для быстрого и легкого черчения плана помещений, мест и архитектурного дизайна. Программа предлагает множество различных инструментов, которые помогут вам начертить план вашего дома, квартиры, жилых помещений и т.д. Пользователю предлагаются такие инструменты, как линии, овалы, прямоугольники, черчение стен, дверей, окон, арок, кирпичных стен, вставка изображений, текста, дублирование предыдущего элемента и многое другое.

ITSS 13/12/10 Просмотров: 4855 Комментариев: 0
0
1